Navigating the world of shipping and logistics can sometimes feel like learning a whole new language, filled with specialized terms and essential documents. Among the most critical pieces of paperwork you’ll encounter is the Bill of Lading, often abbreviated as BOL. This document isn’t just a simple receipt; it’s a legal cornerstone for almost every shipment that moves across land, sea, or air, ensuring clarity and accountability for everyone involved in the transportation process.
Given its vital role, having a reliable and comprehensive sample bill of lading template at your fingertips is an absolute game-changer. It takes the guesswork out of preparing your shipments, helps prevent costly errors, and ensures that all necessary information is accurately captured. Whether you’re a seasoned freight forwarder or just starting to ship products for your small business, understanding and utilizing a well-structured template can significantly streamline your operations and provide peace of mind.
What Exactly is a Bill of Lading, Anyway?
At its heart, a Bill of Lading is a legal document issued by a carrier to a shipper, detailing the type, quantity, and destination of the goods being shipped. Think of it as a multi-purpose document that serves several crucial functions simultaneously. It acts as a receipt for the goods, a contract of carriage between the shipper and the carrier, and sometimes, a document of title to the goods themselves. Without a properly executed Bill of Lading, your goods essentially have no official record of shipment, making their journey much more precarious.

The primary functions of a Bill of Lading are incredibly important for smooth global trade. First, as a receipt, it acknowledges that the carrier has received the goods in good condition, ready for transport. Second, it serves as a contract, outlining the terms and conditions of the transportation, including freight charges, responsibilities of each party, and agreed-upon routes. Lastly, and perhaps most complexly, in some forms, it functions as a document of title, meaning the holder of the original Bill of Lading has the right to claim the goods at their destination.
Understanding these fundamental roles highlights why simply scribbling down details on a piece of paper won’t suffice. Each element on a Bill of Lading carries legal weight and implications. That’s precisely where a well-designed sample bill of lading template becomes indispensable. It ensures that every required field is present, prompts you for all the necessary information, and helps maintain consistency across all your shipments, drastically reducing the chances of disputes or delays.
To ensure your shipments are always compliant and clear, your template should include specific, non-negotiable details. Missing even one piece of information can lead to significant headaches, including customs issues, delivery delays, or even legal complications. Here’s a breakdown of the essential information you’ll find on a robust Bill of Lading:
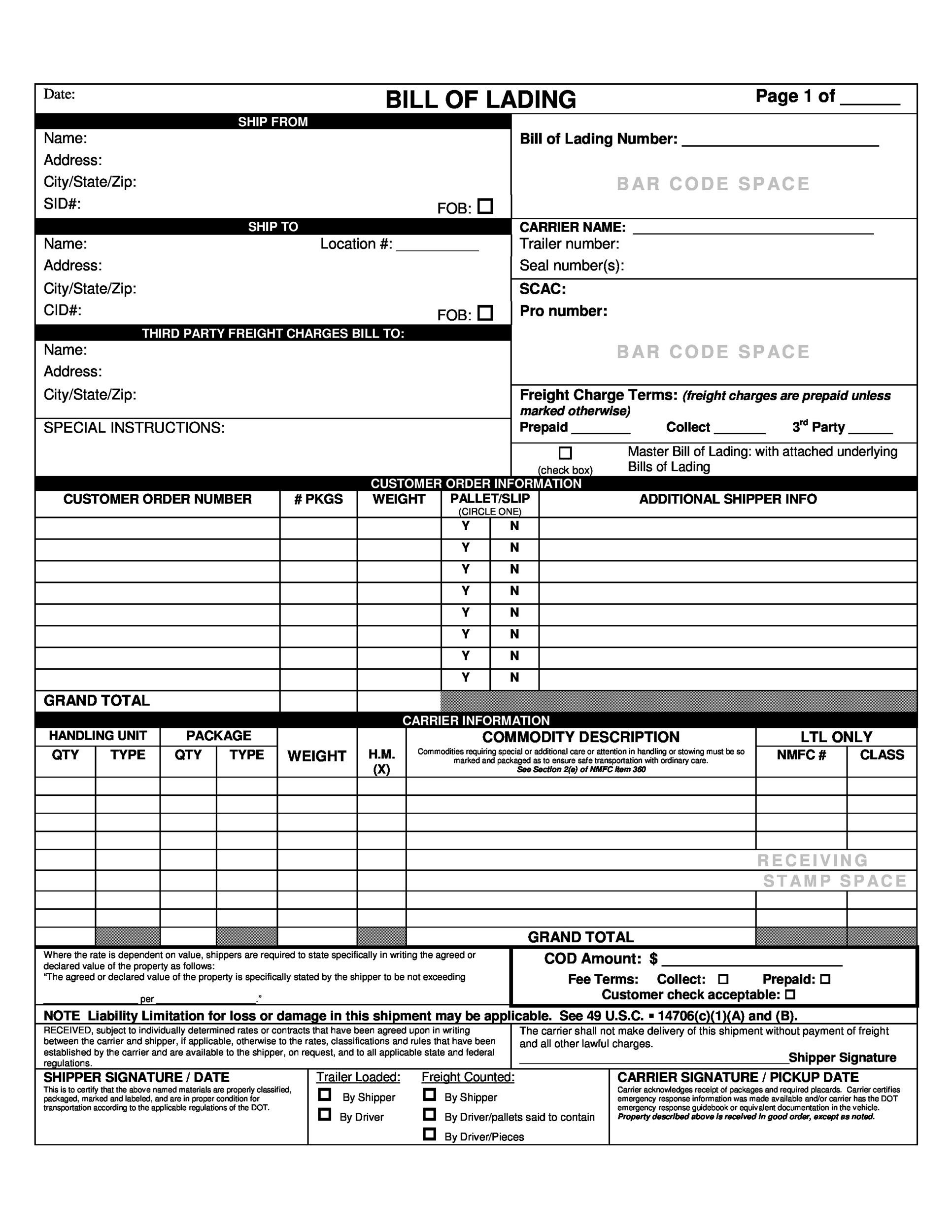
Essential Information You’ll Find on Your Sample Bill of Lading Template
- **Shipper Information:** Full legal name, address, and contact details of the party sending the goods.
- **Consignee Information:** Complete legal name, address, and contact details of the party receiving the goods.
- **Carrier Information:** Name of the company transporting the goods, along with their contact details.
- **BOL Number:** A unique identifying number for tracking purposes.
- **Shipment Date:** The date the goods are tendered to the carrier.
- **Origin and Destination:** The exact locations where the shipment begins and ends.
- **Description of Goods:** A detailed description of the items being shipped, including their type, quantity, and any special characteristics.
- **Packaging Type:** How the goods are packaged (e.g., cartons, pallets, drums).
- **Weight and Dimensions:** The gross weight and dimensions of the entire shipment.
- **Freight Classification (NMFC):** For LTL shipments, the National Motor Freight Classification number.
- **Special Instructions:** Any specific handling, temperature requirements, or delivery notes.
- **Freight Charges:** Details on how the shipping costs are to be paid (prepaid, collect, third party).
- **Signatures:** Signatures from both the shipper and the carrier, acknowledging the terms and receipt of goods.
The Unbeatable Benefits of a Standard Template
The thought of manually creating a Bill of Lading for every single shipment can be daunting, not to mention incredibly time-consuming. This is where the true value of a standardized sample bill of lading template shines. It’s not just about filling in blanks; it’s about establishing a systematic, efficient process that saves you valuable time and resources, allowing you to focus on other critical aspects of your business.
One of the most immediate benefits is the significant reduction in errors. When you’re consistently using the same layout and prompting for the same information, the likelihood of overlooking a crucial detail or making a typo decreases dramatically. This leads to fewer misdeliveries, fewer disputes with carriers or consignees, and a generally smoother operational flow. Furthermore, a consistent template aids in compliance with various shipping regulations, which can differ based on the type of goods or the destination.
Beyond error prevention, a standard template greatly enhances communication and traceability within your supply chain. Everyone involved, from the warehouse staff to the truck driver and the receiving team, becomes familiar with the format and where to find key information. This clarity minimizes confusion and speeds up the entire transit process. Moreover, having standardized Bills of Lading makes it much easier to track shipments, resolve issues quickly, and maintain clear records for auditing or historical analysis.
In the event of lost or damaged goods, or disputes over delivery, a clear, accurate, and consistent Bill of Lading is your primary piece of evidence. It’s the document that details what was shipped, its condition upon pickup, and the agreed-upon terms. This can be invaluable for filing insurance claims or resolving legal challenges. Ultimately, leveraging a dependable template provides a robust foundation for secure, efficient, and legally sound shipping practices, benefiting all parties involved in the logistics chain.
The Bill of Lading remains an indispensable document in the complex world of shipping and logistics. Its role in acknowledging receipt, forming a contract, and sometimes acting as a title makes it far more than just a piece of paper; it’s a critical legal instrument that underpins global commerce. Ensuring its accuracy and completeness is paramount for seamless operations and avoiding costly complications.
By integrating a reliable and comprehensive template into your shipping workflow, you’re not just saving time; you’re investing in efficiency, accuracy, and peace of mind. It allows you to confidently manage your shipments, knowing that all necessary details are captured and that your goods are moving through the supply chain with proper documentation. Embracing such a tool is a fundamental step towards optimizing your logistics and fostering stronger relationships with your carriers and customers alike.



